Transformar sua casa em 2026 com um projeto de reforma bem planejado parece um sonho distante? Muita gente se perde no meio do caminho, seja pela falta de clareza no que quer, seja pelo receio de gastar mais do que o previsto. Mas, vamos combinar, ter um lar que reflete seu estilo e atende às suas necessidades é um desejo justo. Neste artigo, eu te mostro 5 passos essenciais que vão guiar você nessa jornada, desde a ideia inicial até o cantinho pronto para ser aproveitado. Prepare-se para ver seu espaço ganhar vida nova.
Desvendando os Primeiros Passos de um Projeto de Reforma de Sucesso em 2026
Iniciar um projeto de reforma pode gerar dúvidas, mas ter um roteiro claro é o segredo. Antes de qualquer coisa, definir o escopo do que você quer é fundamental. Pense nas áreas que mais precisam de atenção e quais mudanças realmente farão a diferença no seu dia a dia.
A documentação do seu espaço também é um ponto chave. Ter plantas baixas e fotos atuais ajuda a visualizar o antes e o depois. Isso facilita a comunicação com os profissionais e garante que todos estejam na mesma página.
Pesquisar referências visuais é outro passo que inspira e direciona. Salve imagens de ambientes que te agradam, estilos que combinam com você. Essa curadoria vai ser um guia valioso para o projeto.
“Os custos de reforma no Brasil para 2026 variam de R$ 500,00/m² (básica) a R$ 4.000,00/m² (alto padrão), podendo chegar a R$ 8.000,00/m² para projetos completos com marcenaria e iluminação personalizada.”

Projeto de Reforma: O Guia Essencial para Transformar Seu Espaço em 2026
Planejar uma reforma em 2026 vai muito além de escolher novas cores de tinta ou móveis. É sobre reescrever a história do seu lar, otimizando cada metro quadrado para que ele reflita seu estilo de vida e suas necessidades atuais. Com a tecnologia avançando e novas tendências surgindo, o processo se torna mais inteligente e acessível. Vamos desmistificar o projeto de reforma e te guiar pelos passos cruciais para que sua casa se torne o refúgio perfeito.
Em 2026, a expectativa é que as reformas sejam ainda mais personalizadas e eficientes. A integração de tecnologia no planejamento, a busca por sustentabilidade e a otimização de espaços pequenos são tendências fortes. Por isso, ter um projeto bem estruturado é o que separa uma obra caótica de um sucesso transformador. Você quer que sua casa trabalhe a seu favor, certo? Então, se prepare: vamos mergulhar nos detalhes que fazem toda a diferença.

Raio-X Técnico: Destaques e Benefícios de um Projeto Bem Planejado
Um projeto de reforma bem executado é a fundação para um resultado impecável. Ele minimiza imprevistos, otimiza o uso dos recursos e garante que o resultado final esteja alinhado com suas expectativas. Os benefícios vão desde a economia de tempo e dinheiro até a valorização do seu imóvel. Pense nele como o mapa que te leva ao destino desejado sem se perder no caminho. A clareza que um bom projeto traz é inestimável.
| Tipo de Reforma | Estimativa de Custo por m² (2026) |
|---|---|
| Básica | R$ 500,00 a R$ 1.200,00 |
| Intermediária | R$ 1.200,00 a R$ 2.000,00 |
| Alto Padrão | R$ 2.000,00 a R$ 4.000,00 |
| Completa (com marcenaria, mobiliário, iluminação) | Pode atingir R$ 8.000,00 |

Etapas Essenciais do Projeto de Reforma
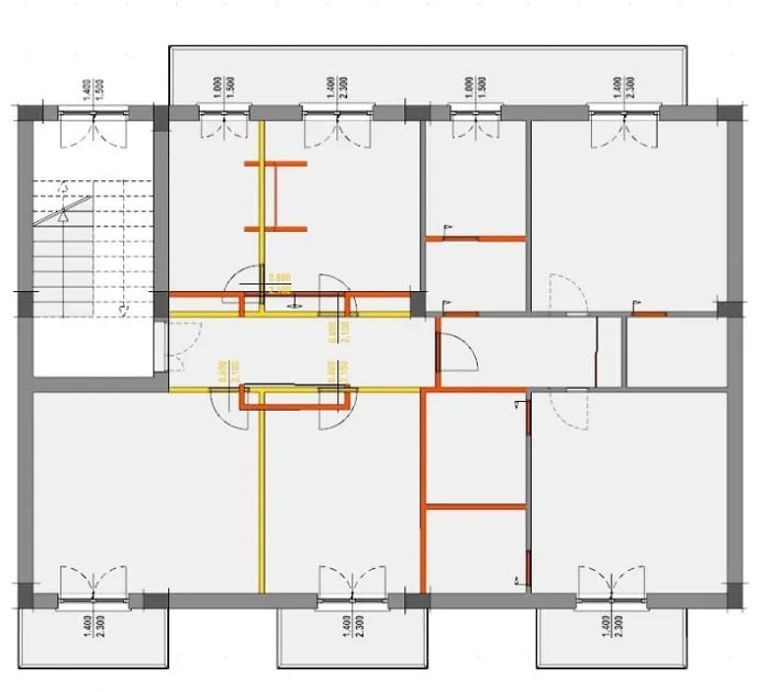
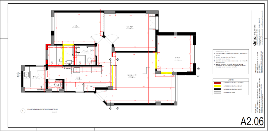
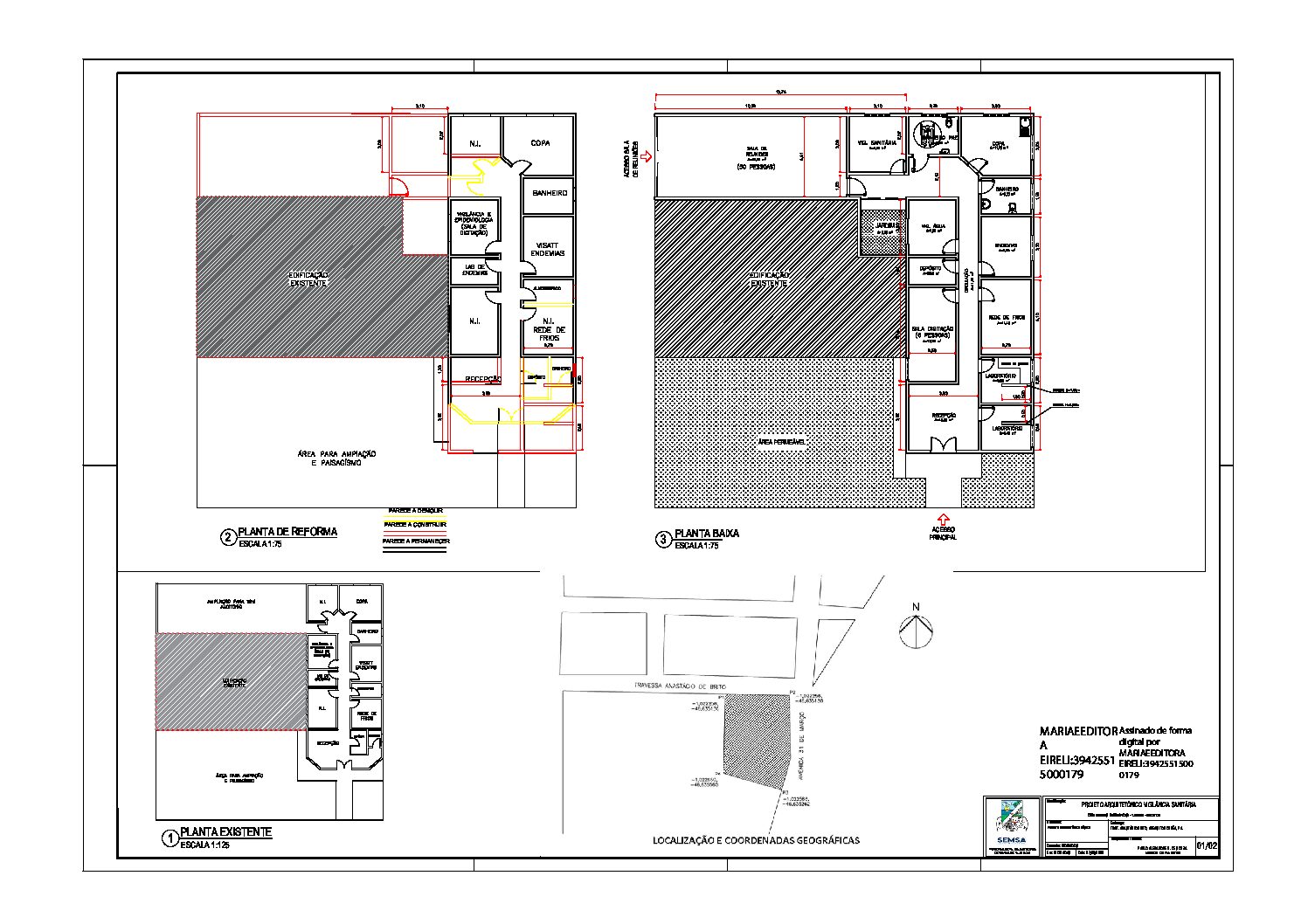
Para que sua reforma seja um sucesso, é fundamental seguir um roteiro claro. Comece com uma visita técnica detalhada, avaliando a estrutura existente e identificando pontos de atenção. Em seguida, defina o escopo do projeto: o que será mantido, o que será demolido e o que será construído. Essa clareza inicial evita retrabalhos e garante que o foco esteja nos objetivos principais.

Estimativa de Custos por Metro Quadrado (2026)
Saber quanto sua reforma vai custar é crucial para o planejamento financeiro. As estimativas de custos por metro quadrado para 2026 variam bastante. Uma reforma básica pode custar entre R$ 500,00 e R$ 1.200,00/m². Já uma intermediária fica entre R$ 1.200,00 e R$ 2.000,00/m². Para um alto padrão, prepare-se para desembolsar de R$ 2.000,00 a R$ 4.000,00/m². Lembre-se que estes valores são apenas uma base e podem mudar dependendo da complexidade e dos materiais escolhidos.

Padrões de Reforma: Básico, Intermediário e Alto Padrão
Entender os diferentes padrões de reforma te ajuda a alinhar suas expectativas com o orçamento disponível. A reforma básica foca em melhorias essenciais, como pintura e pequenos reparos. A intermediária envolve mudanças mais estruturais, como troca de pisos e revestimentos, e atualização de instalações. Já o alto padrão contempla projetos personalizados, com materiais nobres, marcenaria planejada e soluções de automação, podendo chegar a um custo de R$ 8.000,00/m² em um projeto completo.

A Importância de Contratar Profissionais (Arquitetos e Engenheiros)
Para sua segurança e a longevidade da sua reforma, jamais negligencie a contratação de um arquiteto ou engenheiro. Eles são os responsáveis por garantir a segurança estrutural da sua casa e cuidar da regularização de toda a obra junto aos órgãos competentes. Uma obra sem acompanhamento profissional pode trazer sérios riscos.
A expertise de arquitetos e engenheiros vai muito além do projeto estético. Eles possuem o conhecimento técnico para garantir que as soluções estruturais sejam seguras e eficientes, além de orientarem sobre as melhores práticas e materiais. Contratá-los é um investimento na segurança e na valorização do seu patrimônio.

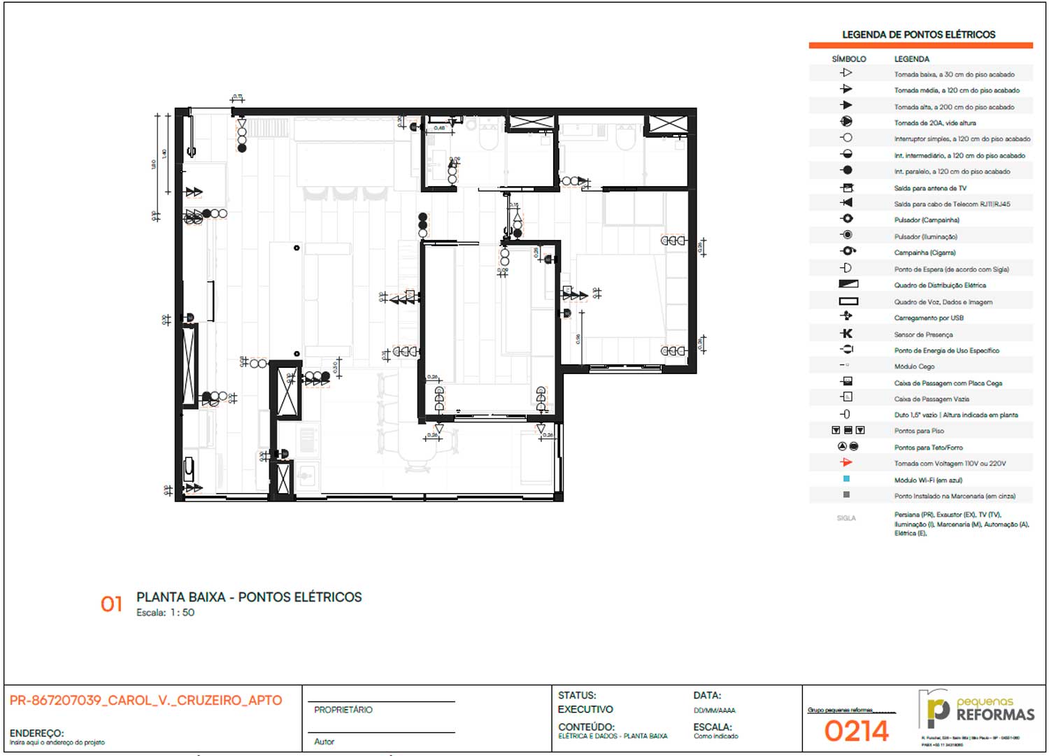
Ferramentas e Softwares para Planejamento de Reformas (Revit)
A tecnologia transformou o planejamento de reformas. Ferramentas como o Revit são indispensáveis para quem busca precisão e organização. Esse software auxilia na visualização tridimensional do projeto, permitindo que você e sua equipe definam claramente o que será mantido, demolido e construído. Essa clareza visual é fundamental para evitar mal-entendidos e garantir que todos estejam na mesma página.

Programas Sociais para Reforma: Reforma Casa Brasil da CAIXA
Para famílias de baixa renda, o acesso à casa própria e a melhorias habitacionais pode ser facilitado por programas governamentais. O Programa Reforma Casa Brasil da CAIXA é um exemplo de iniciativa que visa apoiar essas reformas. Pesquisar sobre essas opções pode ser um diferencial significativo para viabilizar seu projeto sem comprometer o orçamento familiar.

Como Definir Objetivos e Prioridades para Sua Reforma
Antes de começar a pensar em revestimentos e cores, pare e reflita: quais são seus objetivos principais com esta reforma? Você busca mais funcionalidade, conforto, estética ou valorização imobiliária? Definir essas prioridades é o primeiro passo para um projeto bem-sucedido. Anote tudo o que você deseja e depois, com a ajuda do seu arquiteto ou engenheiro, filtre o que é essencial para o seu momento.

Orçamento Detalhado e Cronograma de Execução
Um orçamento detalhado é a espinha dorsal de qualquer reforma. Ele deve incluir todos os custos envolvidos, desde materiais e mão de obra até taxas e imprevistos. Paralelamente, um cronograma de execução bem definido, com prazos realistas para cada etapa, garante que a obra flua sem maiores interrupções. A organização desses dois pilares é o que vai te dar controle sobre o processo e evitar surpresas desagradáveis.
Mais Inspirações

Sala de estar com sofá modular cinza claro, mesa de centro redonda em madeira clara e tapete geométrico em tons de bege e grafite, com iluminação indireta em LED embutida no gesso.

Cozinha moderna com armários planejados brancos com puxadores embutidos, bancada em quartzo branco e backsplash em porcelanato marmorizado, com luminárias pendentes sobre a ilha.

Quarto principal com cama king-size com cabeceira estofada em linho bege, criado-mudo flutuante em madeira e iluminação de leitura articulada na parede.

Banheiro com revestimento em porcelanato que imita cimento queimado nas paredes, box de vidro temperado transparente e bancada em mármore travertino com cuba de apoio redonda.

Varanda gourmet com piso em porcelanato amadeirado, churrasqueira de alvenaria revestida em pastilhas pretas e bancada de apoio em granito preto, com iluminação em spots direcionados.

Escritório com mesa de trabalho em L com tampo em MDF branco e estrutura metálica preta, cadeira ergonômica e estantes modulares abertas com nichos organizadores.

Área de serviço com tanque em louça branca, armários planejados em MDF azul marinho e bancada em granito preto, com iluminação fluorescente central.

Fachada de casa com pintura em tons de grafite e branco, esquadrias em alumínio preto e iluminação externa em arandelas nas paredes, criando um efeito cênico.

Quarto infantil com parede temática de dinossauros em adesivo, cama baixa em madeira clara e tapete redondo em pelúcia azul, com luminária em formato de nuvem.

Sala de jantar com mesa retangular em madeira maciça para 8 pessoas, cadeiras estofadas em veludo verde e lustre pendente com design escultural sobre o centro da mesa.

Hall de entrada com aparador estreito em madeira ripada, espelho redondo com moldura dourada e um vaso com planta verde, com iluminação de destaque em spot no teto.

Cozinha americana com armários inferiores em verde musgo e superiores em branco, bancada em quartzo branco e ilha central com banquetas altas em madeira.

Quarto de casal com papel de parede floral discreto na parede da cabeceira, cama queen-size com roupa de cama em tons terrosos e iluminação indireta em LED.

Banheiro social com revestimento 3D nas paredes, espelho com iluminação em LED integrada e nichos embutidos na parede para organização.
Dicas Extras
- Planejamento é a chave: Antes de tudo, defina seu estilo e necessidades. Isso evita gastos desnecessários e garante que o resultado final seja o que você realmente quer.
- Pesquise materiais com antecedência: Visite lojas, compare preços e qualidade. Saber o custo de reforma residencial por m2 2026 com base nos materiais que você gosta ajuda a ajustar o orçamento.
- Considere a iluminação: Uma boa iluminação transforma qualquer ambiente. Pense em luzes direcionadas, indiretas e naturais para valorizar seu projeto.
- Contrate profissionais qualificados: Para segurança e para evitar retrabalho, arquitetos ou engenheiros são essenciais. Eles garantem que a estrutura esteja segura e que a reforma esteja dentro das normas.
- Visite obras similares: Ver outras reformas prontas pode te dar ideias e mostrar o que funciona (ou não) na prática.
Dúvidas Frequentes
Qual o primeiro passo para planejar uma reforma?
O primeiro passo é definir claramente o escopo do projeto: o que você quer mudar, quais são suas prioridades e qual o seu orçamento disponível. Pensar em como planejar reforma de apartamento pequeno, por exemplo, exige um olhar atento para otimização de espaço.
É possível reformar com pouco dinheiro?
Sim, é possível. Priorize as intervenções mais importantes e pesquise opções de materiais mais acessíveis. Existem programas sociais para reforma de baixa renda, como o Reforma Casa Brasil da CAIXA, que podem ser uma alternativa.
Preciso de um arquiteto para qualquer reforma?
Para reformas que envolvem alteração estrutural, elétrica ou hidráulica, a contratação de um arquiteto ou engenheiro é fundamental para garantir a segurança e a regularização do projeto. Para mudanças mais simples, como pintura, a necessidade pode variar.
Conclusão
Transformar sua casa é um processo empolgante, mas que exige atenção aos detalhes. Seguindo estes passos, você estará mais preparado para realizar o projeto dos seus sonhos em 2026. Lembre-se que um bom planejamento é o alicerce de qualquer reforma bem-sucedida. Considere aprofundar seus conhecimentos sobre o custo de reforma residencial por m2 2026 e explore ferramentas como os melhores softwares para projeto de reforma 3D para visualizar seu futuro lar.

